0
Retour

Witry-lès-Reims (51420)
Terrain viabilisé 450 m² - Opportunité rare - Witry les Reims

Prix
du bien
131 600 €
réf : R72

01
Général

Idéalement située aux portes de Reims, la commune de Witry-les-Reims séduit par son équilibre parfait entre vie paisible et proximité urbaine. Ici, vous profitez d’un cadre de vie résidentiel, tout en restant à quelques minutes des zones d’activités, commerces, écoles et axes routiers principaux.

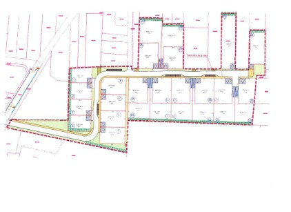
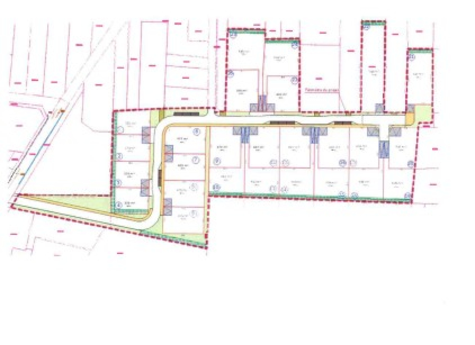
Implanté dans un environnement harmonieux et soigné, ce terrain bénéficie d’un cadre aéré, pensé pour offrir confort et qualité de vie. Le lotissement, composé de seulement 26 parcelles, garantit une ambiance conviviale et maîtrisée, idéale pour un projet familial.

* Surface : 450 m²

* Terrain viabilisé (raccordements aux réseaux effectués)

* Situé en lotissement avec ASL

* Libre de tous constructeurs : concevez la maison qui vous ressemble, sans contrainte imposée

Ce terrain constitue une opportunité idéale pour concrétiser un projet sur mesure.

Pour plus de renseignement, Contactez Maeva au 06.42.44.91.30

02
Plus d'infos

  • Code postal
    51420
  • surface terrain
    450 m²
  • Terrain constructible
    OUI
  • Surface constructible
    450

03
Financier

  • Prix de vente honoraires TTC inclus
    131 600 €

04
Plus de détails

  • Terrain Viabilisé
    OUI

05
Copropriété

  • Copropriété
    NON
Nos outils
Intéressé(e)
par ce bien